V zastoupení hlavního města Prahy nabízíme k dlouhodobému pronájmu byt 3+1
o celkové výměře 136,01 m2, který se nachází v 3. patře historické budovy v centru
Prahy 1, přímo na Náměstí Franze Kafky.
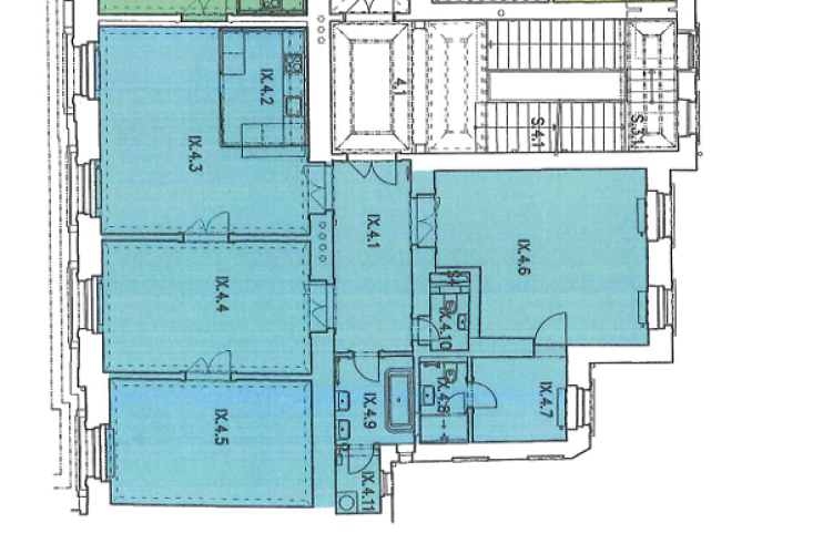
Dispozičně je byt rozdělen na vstupní halu, kuchyň, obývací pokoj, dvě ložnice, koupelnu s toaletou, druhou koupelnu, samostatnou toaletu, šatnu a technickou místnost. Přesné uspořádání najdete v přiloženém plánku a virtuální prohlídce.
Dům i byt prošly v nedávné době celkovou rekonstrukcí. Byt je vybaven designovým nábytkem a kvalitními zařizovacími předměty. Topení je zajištěno centrální kotelnou v domě, přičemž každý byt má vlastní měření spotřeby kalorimetrem. Pro ohřev vody má každý byt má samostatný výměník.
Byty v domě jsou vybaveny bezpečnostním systémem s požárními a pohybovými čidly a možností ovládání přes mobilní aplikaci.
V domě je k dispozici výtah a vstup do objektu je zajištěn čipovým systémem. Byt je vybaven domácím videotelefonem.
V ceně nájmu nejsou zahrnuty měsíční poplatky ve výši 8.600 Kč + vlastní spotřeba el. energie a plynu.
Objekt se nachází v dochozí vzdálenosti od stanice metra Staroměstská.
Byt je připraven k okamžitému nastěhování.
Prostory nelze nabízet pro krátkodobé pronájmy a k pronájmu třetím osobám.
Pro více informací mě neváhejte kontaktovat.
Nabídky podané jiným způsobem, než pomocí níže uvedeného formuláře nebudou akceptovány. Jedním z hlavních kritérií je Vámi navržená částka nájmu bez služeb, která je rovna minimálně poslednímu dosaženému nájemnému.
Virtuální prohlídka
| CENA: |
| Orientační nájem: 51 280 Kč / měsíc. Jistota ve výši tří měsíčních nájmů. |
| POZNÁMKA K CENĚ: |
| bez služeb, zálohy na služby 8 600 Kč +vlastní spotřeba el. energie a plynu. |
| PŘÍSLUŠENSTVÍ: |
| – kuchyňská linka se spotřebiči (myčka, sklokeramická varná deska, vestavěná trouba, digestoř, lednice), v ložnici vestavěné skříně, bezpečnostní systém, domácí videotelefon |
| ENERGETICKÁ NÁROČNOST: |
| Třída G |
| STAVBA: |
| Cihlová, v dobrém stavu, 4. NP |
| PLOCHA: |
| Byt 3+1 o výměře 136,01 m2 |
| LOKALITA: |
| Centrum města |
| OSTATNÍ: |
| V případě zájmu o byt pošlete nabídku z kontaktního formuláře níže. Volné ihned. |
| ČÍSLO PROSTORU: |
| 29-09 |








