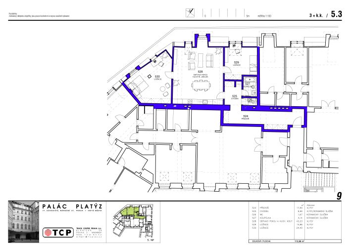
V zastoupení hlavního města Prahy Vám nabízíme k dlouhodobému pronájmu krásný, nezařízený byt s výhledem na Pražský hrad s dispozicí 3+kk o celkové výměře 106,20 m2, který se nachází v 4. patře na IV. schodišti v historicky chráněné budově s ostrahou 24/7, který je velmi dobře udržovaný s výtahem v lukrativní lokalitě v srdci Prahy.
Byt nabízí velkou předsíň s vestavěnou skříní, obývací pokoj s kuchyňským koutem s plně vybavenou kuchyňskou linkou (el. sporák se sklokeramickou deskou, pečící trouba, digestoř, myčka, lednice, mikrovlnná trouba) a 2 samostatné ložnice, dále potom koupelnu s toaletou a samostatnou toaletu. V bytě je kvalitní dřevěná podlaha v kombinaci s dlažbou. V domě je centrální plynové topení, bezpečnostní dveře, intercom.
V ceně nájmu nejsou zahrnuty zálohové platby.
Veškerá občanská vybavenost, blízko domu se nachází metro Můstek, linky A a B či tramvajová zastávka Národní třída a metro linka B. 2 minuty od domu průchodem přes Františkánskou zahradu zastávka tram Václavské náměstí.
Byt nelze nabízet pro krátkodobé pronájmy a k pronájmu třetím osobám.
Nabídky podané jiným způsobem, než pomocí níže uvedeného formuláře nebudou akceptovány. Jedním z hlavních kritérií je Vámi navržená částka nájmu bez služeb, která je rovna minimálně poslednímu dosaženému nájemnému.
Virtuální prohlídka
| CENA: |
| Orientační nájem: 42 000 Kč / měs. |
| POZNÁMKA K CENĚ: |
| Zálohy na služby 5.000 Kč (topení, vodné, stočné, TÚV, výtah, odvoz odpadu, úklid a osvětlení společných prostor, elektrická energie – samostatný elektroměr) |
| PŘÍSLUŠENSTVÍ: |
| – kuchyňská linka se spotřebiči (lednice s mrazákem, sklokeramická varná deska, pečící trouba, digestoř, myčka, mikrovlnná trouba), v chodbě pračka |
| ENERGETICKÁ NÁROČNOST: |
| Třída C |
| STAVBA: |
| Cihlová, V dobrém stavu, 5. NP, výtah |
| PLOCHA: |
| Užitná plocha 106,20 m² |
| LOKALITA: |
| Centrum města |
| OSTATNÍ: |
| ČÍSLO PROSTORU: |
| 01-71 |










